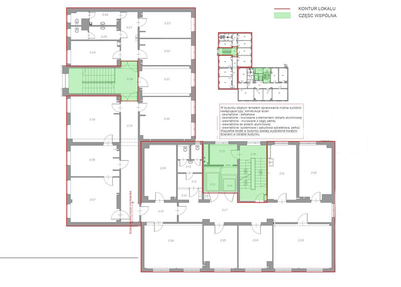
Lokal użytkowy 391,08 m2 , I piętro , Koszalin, ul. Armii Krajowej (wejście od ul. Jana z Kolna lub głównym wejściem od Armii Krajowej)
Świetna lokalizacja w ścisłym centrum Koszalina, tuż przy dworcu PKP/PKS, w bezpośrednim sąsiedztwie głównych arterii miasta. Lokal znajduje się na pierwszym piętrze w bocznej nawie budynku (od strony ul. Jana z Kolna), z wejściem klatką schodową bezpośrednio od dużego parkingu.
Najważniejsze informacje:
Powierzchnia: 391,08 m2
15 pomieszczeń biurowo-użytkowych (9,16–23,60 m2), w tym 10 pomieszczeń z pełnowymiarowymi oknami, 4 pomieszczenia z małymi oknami typu lufcik w górnej części ściany jedno pomieszczenie bez okien,
4 toalety (co najmniej 4 punkty wodno sanitarne)
Stan: do remontu/adaptacji
Ogrzewanie z sieci miejskiej (MEC) – instalacja do wykonania wewnątrz lokalu
dwa wejścia do lokalu: od ul. Jana z Kolna klatką schodową oraz wejścia głównego z windą na pierwsze piętro.
Idealny pod:
biuro (IT, marketing, księgowość, projektowanie)
kancelarię lub siedzibę firmy
działalność medyczna, spa lub podobne
idealna na sklep internetowy
Atuty lokalizacji:
ścisłe centrum, 50 m od dworca PKP/PKS
bezpośrednie wejście z ulicy i parking przy wejściu
komunikacja miejska, usługi, urzędy i gastronomia w zasięgu 2–3 minut pieszo
bardzo dobra ekspozycja i widoczność od strony ul. Jana z Kolna
Dodatkowo:
Transakcja zwolniona z podatku VAT
Możliwość zakupu podobnych lokali w budynku (różne powierzchnie i układy)
Budynek o konstrukcji żelbetowo-murowanej, dawniej siedziba banku – wysoki standard konstrukcyjny
Zapraszamy na prezentację – to lokal z ogromnym potencjałem inwestycyjnym i biznesowym! Oferta pod opieką licencjonowanego pośrednika (nr lic. 14825)
Kalkulator pozwala oszacować kwotę, na pokrycie dodatkowych kosztów transakcji.
Ostateczne koszty skonsultuj z pośrednikiem po negocjacji ceny, prowizji i ustaleniu notariusza.
Lokal użytkowy 391,08 m2 , I piętro , Koszalin, ul. Armii Krajowej (wejście od ul. Jana z Kolna lub głównym wejściem od Armii Krajowej)
Świetna lokalizacja w ścisłym centrum Koszalina, tuż przy dworcu PKP/PKS, w bezpośrednim sąsiedztwie głównych arterii miasta. Lokal znajduje się na pierwszym piętrze w bocznej nawie budynku (od strony ul. Jana z Kolna), z wejściem klatką schodową bezpośrednio od dużego parkingu.
Najważniejsze informacje:
Powierzchnia: 391,08 m2
15 pomieszczeń biurowo-użytkowych (9,16–23,60 m2), w tym 10 pomieszczeń z pełnowymiarowymi oknami, 4 pomieszczenia z małymi oknami typu lufcik w górnej części ściany jedno pomieszczenie bez okien,
4 toalety (co najmniej 4 punkty wodno sanitarne)
Stan: do remontu/adaptacji
Ogrzewanie z sieci miejskiej (MEC) – instalacja do wykonania wewnątrz lokalu
dwa wejścia do lokalu: od ul. Jana z Kolna klatką schodową oraz wejścia głównego z windą na pierwsze piętro.
Idealny pod:
biuro (IT, marketing, księgowość, projektowanie)
kancelarię lub siedzibę firmy
działalność medyczna, spa lub podobne
idealna na sklep internetowy
Atuty lokalizacji:
ścisłe centrum, 50 m od dworca PKP/PKS
bezpośrednie wejście z ulicy i parking przy wejściu
komunikacja miejska, usługi, urzędy i gastronomia w zasięgu 2–3 minut pieszo
bardzo dobra ekspozycja i widoczność od strony ul. Jana z Kolna
Dodatkowo:
Transakcja zwolniona z podatku VAT
Możliwość zakupu podobnych lokali w budynku (różne powierzchnie i układy)
Budynek o konstrukcji żelbetowo-murowanej, dawniej siedziba banku – wysoki standard konstrukcyjny
Zapraszamy na prezentację – to lokal z ogromnym potencjałem inwestycyjnym i biznesowym! Oferta pod opieką licencjonowanego pośrednika (nr lic. 14825)
Ta strona korzysta z ciasteczek aby świadczyć usługi na najwyższym poziomie. Dalsze korzystanie ze strony oznacza, że zgadzasz się na ich użycie.