Przewiń do zawartości
Działka budowlana Sprzedaż:
Koszalin
Nr oferty
1001404
Id oferty podstawowy
Rynek
Wtórny
Typ transakcji
Sprzedaż
Miejscowość
Koszalin
Ulica
Kazimierza Wielkiego
Piętro / Ilość pięter
0 / 0
Garaż
Balkon
(Brak informacji)
Rok budowy
Powierzchnia
1439.00
Liczba pokoi
0
Stan techniczny
Piwnica
---
Typ budynku
Cena
2 400 000 PLN
Powierzchnia
1439.00 m2
Opis:
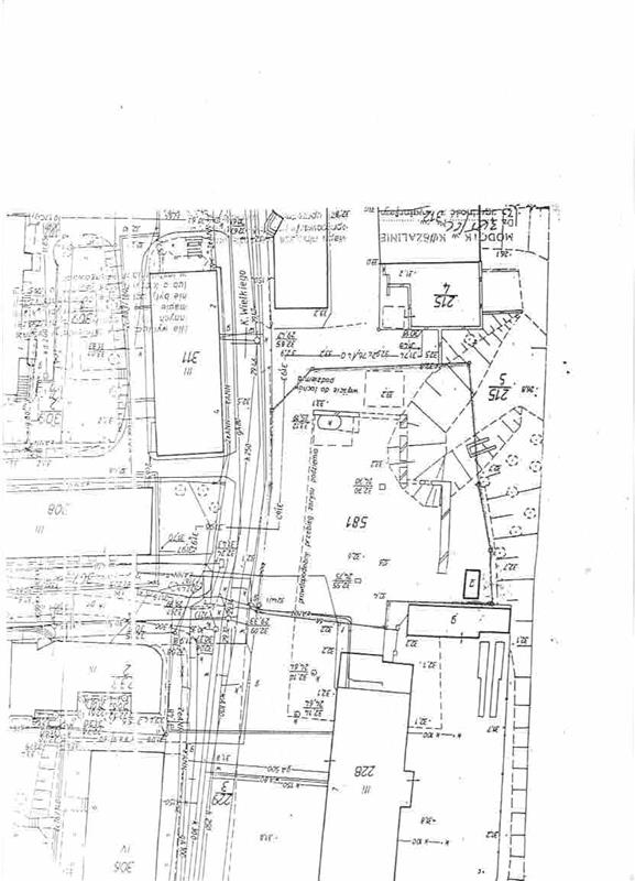
Działka budowlano-usługowa w centrum Koszalina!
ul. Kazimierza Wielkiego, działka nr 581
Powierzchnia: 1439 m2
Cena: 2 400 000 zł
MPZP: L28MS
Wszystkie media
Zabudowa do 5 kondygnacji + podziemie
Powierzchnia zabudowy: do 70% pow. działki
Dachy: strome lub wielospadowe
Min. 15% powierzchni biologicznie czynnej
Projekt budowlany do uzgodnienia - strefa ścisłej ochrony konserwatorskiej
Ustalenia archeologiczne i geologiczne są w trakcie końcowego procesu
Nagranie z drona: https://youtu.be/NPQsERDZsAw?si=5y63npYY5IcORrjW
Kalkulator
Kalkulator pozwala oszacować kwotę, na pokrycie dodatkowych kosztów transakcji.
Ostateczne koszty skonsultuj z pośrednikiem po negocjacji ceny, prowizji i ustaleniu notariusza.
Do góry
Działka budowlana Sprzedaż:
Koszalin
Nr oferty
1001404
Id oferty podstawowy
Rynek
Wtórny
Typ transakcji
Sprzedaż
Miejscowość
Koszalin
Ulica
Kazimierza Wielkiego
Piętro / Ilość pięter
0 / 0
Garaż
Balkon
(Brak informacji)
Rok budowy
Powierzchnia
1439.00
Liczba pokoi
0
Stan techniczny
Piwnica
---
Typ budynku
Cena
2 400 000 PLN
Powierzchnia
1439.00 m2
Działka budowlano-usługowa w centrum Koszalina!
ul. Kazimierza Wielkiego, działka nr 581
Powierzchnia: 1439 m2
Cena: 2 400 000 zł
MPZP: L28MS
Wszystkie media
Zabudowa do 5 kondygnacji + podziemie
Powierzchnia zabudowy: do 70% pow. działki
Dachy: strome lub wielospadowe
Min. 15% powierzchni biologicznie czynnej
Projekt budowlany do uzgodnienia - strefa ścisłej ochrony konserwatorskiej
Ustalenia archeologiczne i geologiczne są w trakcie końcowego procesu
Nagranie z drona: https://youtu.be/NPQsERDZsAw?si=5y63npYY5IcORrjW
Ta strona korzysta z ciasteczek aby świadczyć usługi na najwyższym poziomie. Dalsze korzystanie ze strony oznacza, że zgadzasz się na ich użycie. Zgoda Polityka prywatności